Quadrilocale in vendita

Grugliasco, Corso f.lli cervi
€ 210.000
4 locali 4 locali
92 Mq 92 Mq
1 bagno 1 bagno

Quadrilocale in vendita

Grugliasco, Corso f.lli cervi

Descrizione annuncio

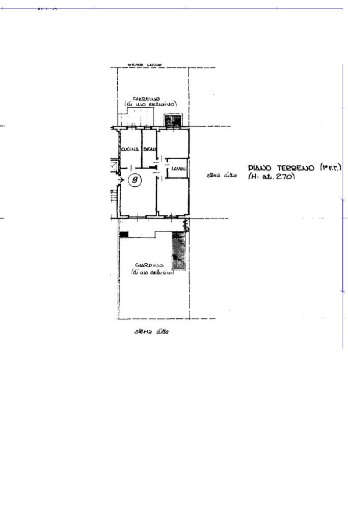
In una zona tranquilla e comoda a tutti i servizi, adiacente al centro cittadino di Grugliasco, proponiamo in vendita un appartamento al piano terra situato in un decoroso palazzo in paramano di fine anni ’80.

L’abitazione accoglie con un ingresso living su zona giorno, perfetta per trascorrere momenti di relax in famiglia o con gli amici, la cucina è abitabile ed entrambe le stanze si affacciano direttamente sul giardino, creando un piacevole collegamento tra gli spazi interni ed esterni.

La zona notte comprende due camere da letto, un bagno e un comodo ripostiglio (possibilità di realizzare un secondo servizio).

Completa la proprietà una cantina al piano interrato.

Il vero punto di forza di questa casa è rappresentato dai due giardini privati, un angolo di tranquillità nel cuore della città, ideale per chi ama vivere all’aperto.

La posizione è davvero strategica: vicina al centro, alle scuole, ai negozi e ai mezzi pubblici, pur mantenendo un’atmosfera riservata e silenziosa.

Un appartamento accogliente, funzionale e ricco di potenziale, perfetto per una famiglia o per chi desidera godere di spazi esterni privati senza rinunciare alla comodità dei servizi cittadini.

Mostra tutto

Nelle vicinanze

Trasporto pubblico Trasporto pubblico
Fermi
Fermi
2,4 Km
Paradiso
Paradiso
2,8 Km
stazione di Grugliasco
stazione di Grugliasco
2,3 Km
stazione di Collegno
stazione di Collegno
2,4 Km
Perotti
Perotti
20 m
Ricariche auto elettriche Ricariche auto elettriche
Tris Car Di Mina Giuseppe | EnelX
1,4 Km
Collegno Corso Francia | EnelX
2,0 Km
RIVOLI Via Pavia | ENELX FAST
2,2 Km
Collegno Pastrengo | ENELX
2,3 Km
Mercatò Rivoli | EnelX fast
2,7 Km
Scuole Scuole
66 Martiri
430 m
Dante Di Nanni
1,2 Km
Istituto Tecnico Industriale Statale Ettore Majorana
1,4 Km
Scuola Elementare Giuseppe Ungaretti
1,5 Km
Facoltà di Agraria e Veterinaria
1,7 Km
Farmacia Farmacia
Farmacia
490 m
Vecco
810 m
Farmacia Peirano
1,5 Km
Farmacia Nuova di Grugliasco
2,6 Km
Parafarmacia Conad
2,6 Km
Supermercati Supermercati
Penny Market
490 m
Basko
500 m
GS
710 m
Compro Qui
720 m
Mercatò
890 m
Negozi Negozi
Panetteria
720 m
latteria - milk and food
960 m
Alimentari
960 m
Carrefour Express
1,3 Km
Negozi
1,8 Km
Bar Bar
Bar
750 m
Gelateria
1,2 Km
Pausa Café
1,2 Km
Bar - tabacchi
1,3 Km
Bar Pa.Fi.
1,7 Km
Ristoranti Ristoranti
Nord Ovest
670 m
rosticceria
830 m
Ristoranti
870 m
Pizzeria degli Angeli
930 m
Pizza Pazza
1,0 Km
Mostra tutto

Caratteristiche

Rif.:
61130033
Piano:
Terra con giardino di 5 con ascensore
Totale piani:
5
Terrazzi:
2
Camere da letto:
2
Arredamento:
Assente
Mostra tutto
Prezzo Prezzo
€ 210.000
Prezzo box Prezzo box
€ 1
Rata mutuo Rata mutuo
€ 979 / mese
Spese annue Spese annue
€ 1.000
Proponi il tuo prezzoProponi il tuo prezzo

Classe Energetica

E
E
E
E
E
E
E
E
E
EP globale non rinnovabile:
87.21 kW h/m² anno
EP globale rinnovabile:
0.23 kW h/m² anno
EP invernale del fabbricato:
EP estiva del fabbricato:
Anno di costruzione:
1990
Riscaldamento:
Autonomo
Tipo impianto:
A radiatori
Tipo alimentazione:
Metano

Ti interessa visionare l'immobile?

Fissa un appuntamento  Fissa un appuntamento

Richiedi informazioni

Clicca su Leggi per aprire l'informativa
* Questi campi sono obbligatori

Calcola il tuo mutuo

Semplice e senza impegno
Anticipo

( % )
Mutuo

( % )

pochi semplici passi

inserisci i tuoi dati
Questionario completato
Grazie per aver richiesto un appuntamento senza impegno con un nostro Consulente del Credito e Assicurativo.

Hai inserito correttamente tutti i dati necessari e a breve riceverai una e-mail con un link da convalidare per inviare i tuoi dati.
Affiliato
Studio Grugliasco 1 Sas
Via Cesare Battisti, 20 10095 Grugliasco (TO)

Il nostro staff


  • Igor Destefano
    Affiliato

  • Isabella Tavaglione
    Coordinatrice

  • Paolo Donadio
    Responsabile

  • Rossana Massaro
    Coordinatrice
Via Cesare Battisti, 20 10095 Grugliasco (TO)
Zona: Grugliasco-Via Battisti-San Giacomo-Borgo Verde-Zona Fabbrichetta
Mostra su mappa
Orari: Dal Lunedi al Venerdì: dalle 8:30-12:30 alle 15:00-19:30 . Il Sabato: 9:00-12:30/15:00-19:00.
Affiliato
Studio Grugliasco 1 Sas
Via Cesare Battisti, 20 10095 Grugliasco (TO)

2025 Tecnocasa Franchising S.p.A. - P. IVA 08365160152 - Via Monte Bianco 60/A 20089 Rozzano (MI). Ogni agenzia ha un proprio titolare ed è autonoma. Privacy policy | Policy utilizzo | Cookie policy