Quadrilocale in vendita

Grugliasco, Via olevano
€ 309.000
Prezzo aggiornato
4 locali 4 locali
107 Mq 107 Mq
2 bagni 2 bagni

Quadrilocale in vendita

Grugliasco, Via olevano

Descrizione annuncio

Costruita per raccogliere i tuoi sogni, dove il futuro prende forma.

Nel cuore più vivo di Grugliasco, a pochi passi dal fascino del centro storico, nasce una casa pensata per essere vissuta davvero. Un luogo dove ogni spazio racconta comfort, eleganza e libertà.

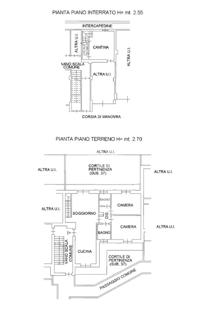
Questo esclusivo quadrilocale di 107 mq, al piano terra di una nuova e residenziale costruzione del 2025, ti accoglie con una luce naturale che attraversa gli ambienti grazie alla doppia esposizione. Ma è all’esterno che succede qualcosa di speciale: un giardino privato di 85 mq che coinvolge la casa, creando uno spazio intimo, protetto, tutto tuo. Qui puoi iniziare la giornata con un caffè all’aria aperta, far giocare i bambini oppure rilassarti al tramonto.

Gli interni parlano di stile e ricercatezza: il calore del gres porcellanato effetto parquet Northwind Brown, le superfici ampie e contemporanee dei bagni (finestrati) con piastrelle 60 x 120 in elegante Oxide Green e Port Laurent Glossy. Ogni scelta è pensata per farti sentire in un ambiente elegante ma accogliente, moderno ma senza tempo.

La zona living (di 33 mq) con cucina a vista è il vero cuore pulsante della casa: uno spazio aperto dove condividere momenti, creare ricordi, vivere la quotidianità con naturalezza, le camere da letto sono due (14 mq e 12,50 mq). E poi un dettaglio che fa la differenza: una scala interna che conduce alla cantina privata, collegata direttamente al box auto, per una comodità rara e preziosa.

Tecnologia e benessere si fondono in ogni dettaglio: riscaldamento a pavimento, ventilazione meccanica controllata con impianto in VMC per un’aria sempre pulita, impianto fotovoltaico privato da 2KW, infissi in pvc da 82 mm con triplo vetro, predisposizione per gli split di climatizzazione negli ambienti principali, serrande elettriche, l’impianto elettrico ha la portata cavi fino a 6KW (ideale per cucine a induzione), la serie scelta è la Bticino Living Now in colorazione bianca.

L’impianto termico e idrico-sanitario è gestito da pompa di calore autonoma per singola unità.

Completa la proprietà un box ad Euro 26.000,00 (obbligatorio)

Qui il comfort non è un lusso, è la normalità.

Sicura, efficiente, pronta per il futuro, con predisposizione alla domotica e impianti pensati per le esigenze di oggi.

Questa non è solo una casa nuova.
È il luogo dove costruire il tuo quotidiano, con spazio, luce e qualità.

La classe energetica alta permette di accedere ad un mutuo agevolato con tassi convenienti.

Vieni a scoprirla dal vivo: alcune sensazioni si possono capire solo entrando.

Mostra tutto

Nelle vicinanze

Trasporto pubblico Trasporto pubblico
Fermi
Fermi
2,3 Km
Paradiso
Paradiso
2,8 Km
stazione di Grugliasco
stazione di Grugliasco
2,2 Km
stazione di Collegno
stazione di Collegno
2,2 Km
Perotti
Perotti
180 m
Ricariche auto elettriche Ricariche auto elettriche
Tris Car Di Mina Giuseppe | EnelX
1,3 Km
Collegno Corso Francia | EnelX
1,9 Km
RIVOLI Via Pavia | ENELX FAST
2,1 Km
Collegno Pastrengo | ENELX
2,2 Km
COLLEGNO PASTRENGO 34/b | ENELX
2,6 Km
Scuole Scuole
66 Martiri
370 m
Dante Di Nanni
1,1 Km
Istituto Tecnico Industriale Statale Ettore Majorana
1,3 Km
Scuola Elementare Giuseppe Ungaretti
1,4 Km
Facoltà di Agraria e Veterinaria
1,7 Km
Farmacia Farmacia
Farmacia
420 m
Vecco
670 m
Farmacia Peirano
1,4 Km
Parafarmacia Conad
2,5 Km
Farmacia Comunale 9
2,5 Km
Supermercati Supermercati
Penny Market
420 m
GS
560 m
Basko
580 m
Compro Qui
610 m
Mercatò
720 m
Negozi Negozi
Panetteria
600 m
latteria - milk and food
870 m
Alimentari
940 m
Carrefour Express
1,2 Km
Negozi
1,7 Km
Bar Bar
Bar
610 m
Gelateria
1,1 Km
Pausa Café
1,1 Km
Bar - tabacchi
1,2 Km
Bar Pa.Fi.
1,5 Km
Ristoranti Ristoranti
Nord Ovest
530 m
rosticceria
700 m
Ristoranti
710 m
Pizzeria degli Angeli
840 m
Pizza Pazza
990 m
Mostra tutto

Caratteristiche

Rif.:
61212867
Piano:
Terra con giardino di 1
Totale piani:
1
Box:
1
Camere da letto:
2
Arredamento:
Assente
Mostra tutto
Prezzo Prezzo
€ 309.000
Prezzo box Prezzo box
€ 26.000
Rata mutuo Rata mutuo
€ 1.464 / mese
Spese annue Spese annue
€ 1
Proponi il tuo prezzoProponi il tuo prezzo

Classe Energetica

A4
A4
A4
A4
A4
A4
A4
A4
A4
EP globale non rinnovabile:
39.79 kW h/m² anno
EP globale rinnovabile:
133.66 kW h/m² anno
EP invernale del fabbricato:
EP estiva del fabbricato:
Anno di costruzione:
2025
Riscaldamento:
Autonomo
Tipo impianto:
A pavimento
Tipo alimentazione:
Altro

Prezzo ridotto di €1 (11%%)

Ti interessa visionare l'immobile?

Fissa un appuntamento  Fissa un appuntamento

Richiedi informazioni

Clicca su Leggi per aprire l'informativa
* Questi campi sono obbligatori

Calcola il tuo mutuo

Semplice e senza impegno
Anticipo

( % )
Mutuo

( % )

pochi semplici passi

inserisci i tuoi dati
Questionario completato
Grazie per aver richiesto un appuntamento senza impegno con un nostro Consulente del Credito e Assicurativo.

Hai inserito correttamente tutti i dati necessari e a breve riceverai una e-mail con un link da convalidare per inviare i tuoi dati.
Affiliato
Studio Grugliasco 1 Sas
Via Cesare Battisti, 20 10095 Grugliasco (TO)

Il nostro staff


  • Igor Destefano
    Affiliato

  • Isabella Tavaglione
    Coordinatrice

  • Paolo Donadio
    Responsabile

  • Rossana Massaro
    Coordinatrice
Via Cesare Battisti, 20 10095 Grugliasco (TO)
Zona: Grugliasco-Via Battisti-San Giacomo-Borgo Verde-Zona Fabbrichetta
Mostra su mappa
Orari: Dal Lunedi al Venerdì: dalle 8:30-12:30 alle 15:00-19:30 . Il Sabato: 9:00-12:30/15:00-19:00.
Affiliato
Studio Grugliasco 1 Sas
Via Cesare Battisti, 20 10095 Grugliasco (TO)

2026 Tecnocasa Franchising S.p.A. - P. IVA 08365160152 - Via Monte Bianco 60/A 20089 Rozzano (MI). Ogni agenzia ha un proprio titolare ed è autonoma. Privacy policy | Policy utilizzo | Cookie policy